fotorelacja złazienki
Łazienka dzień I



Łazienka dzień I



Będzie krótko i be z djeć, bo już strasznie późno..
Płytki w łazience ułożone juz na podłodze, zdjęcia wkleję jutro
Jacek doszlifowała wieczorem ściany w kolejnych pomieszczeniach, został mu salon i garaz....złozył też domek dziewczynkom i przewiózł mi szafeczkę
sobotni grad przyniósł straty w moim warzywniaczku i to duże
Pani projektantka kuchni już mnie denerwuje... a stolarz na wycenę kuchni olał mnie i nie przyjechal, nie odpowiadal też na telefony i smsy..
Kamieniarz wycenił blat na 2000 zł Indiana Black, ale montaż i obróbka aż na 1500, nie wiem co zrobimy.
.. a moja Melcia była cały czas dziś ze mną, długo na dworze i pojawiły sie niestety nowe krosty ospy łeeeee
Jutro jestem umówiona na 9 z kamieniarzem na pomiar i wycene blatu kuchennego. Ciekawa jestem ile mi zaśpiewa i czy będzie mnie wogóle stać na blat z kamienia lub jego imitację. Marzyłam o blacie z granitu star galaxy, ale wiem już, że jest poza naszym zasięgiem "finansowym". Zastanawiam się teraz nad konglomeratem kwarcowy, ale są też inne twory typu silestone, trafic stone. Chcę mieć blat w kolorze czarnym, który nie będzie się zbytnio rysował, ewentualnie może być w macie.
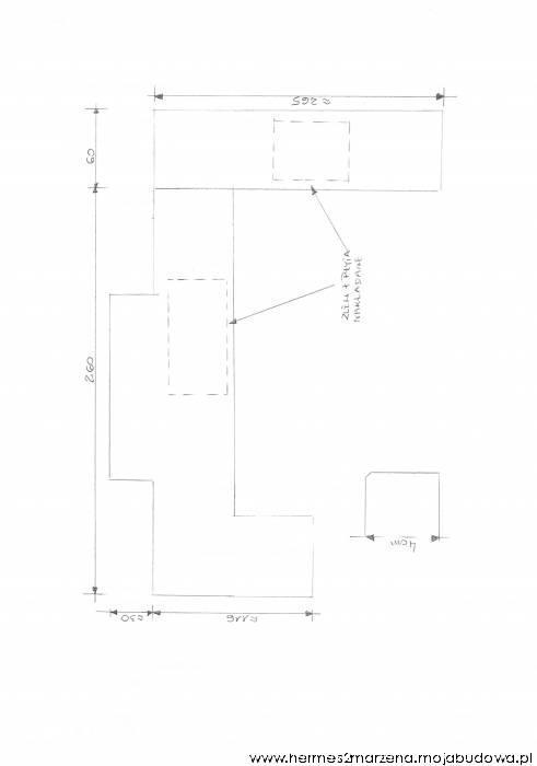
Projektantka rozrysowała mi wielkość blatu

A od 8:00 przychodzą układać moje piękne, cudowne płyteczki. Ciekawa jestem strasznie jak beda prezentować się na ścianach... A o 18:00 przyjedzie stolarz pomierzyć regał. Dodzwoniłam się w sobotę do Pana, który robił nam wstępny projekt kuchni rok temu. Niestety bardzo dlugo nie odbierał telefonu i już zwatpiłam... Dlatego tyle tych moich poszukiwań regału kuchennego, na miarę moich marzeń i zasobności portfela. Rok temu regał w kształcie litery L wyliczył na 6 tyś. w lakierze.




We wtorek spotkałam się z Edytą, projektantka od łazienki. Dostalam juz gotowy projekt z iloscią płytek, każdego rodzaju. Zrobiłyśmy też wstepne ustalenia kolorów ścian. Bedą to głównie biele i brązy Dulux kolory świata, a po dużej zniżce z racji znajomości usłyszałam wiele fajnychrad na temat doboru mebli do naszego wnetrza.
Zamówiłam płytki w środe przed południem a wczoraj wieczorem juz dotarły do sklepu, będziemy je dzisiaj przewozić na dwa samochody na działkę. Cena wyszła naprawdę rewelacyjna. Nie chcę się chwalić ale to chyba dzięki mnie. tyle razy chodziłam do tego sklepu i pytałam o rózne rzeczy, robiłam zdjęcia i przy okazji negocjowałam rabat. Teraz w każdym sklepie nie puszczą klienta bez rabatu. jak miałam czas to chodziłam po garwolinie i sprawdzalam ceny, pytałam ile można dostać rabatu i te moje eskapady przynoszą efekt. Nawet w domexie obiecali mi zrobić taką cenę na panele Classena Hicora Azteca Ciemna, żebym nie poszła do konkurencji, firmowego sklepu Ruc Zuc. Muszę tylko sprzwdzić też cenę podkladu i listew żeby na tym mnie nie nacieli...
a plytki do łazienki to te upatrzone i upragnione Paradyż Delicate ... jak to powiedziała Edyta, w stylu królewskim...




oh o naiwności słodka...
wycena kuchni zapowiadała sie tak sympatycznie ale była w bardzo ubogiej wersji, dochodzą jeszcze najprzerózniejsze przegródki, obrotowe cośtam do szafek narożnych a korpusy (czyli boki szafek) w laminacie, w wersji lakierowanej dopłata 1400 zł. Za tandemboxy czy coś w ten deseń dopłata 70 zł do każdej szuflady a ma być ich 6. Zamiast szafki cargo, do której też muszę dopłacić bo nie jest wliczona, też mam ochotę zrobić szufladę. Szafka cargo ma bowiem aż 23 cm szerokości, to po co mi takie cargo i na dodatek będę mogła do cargo podchodzić z jednej strony... o losie...
Zapłaciłam jednak za projekt te 300 zł bo jest fajny, przerobię jednak cargo na szafkę zwykłą, a obok bym zrobiła te 2 półki. Korpus przy piekarniku zrobię bialy, bo za dużo tego czerwonego się zrobiło




a to jest wersja kuchni po której się załamałam i szukałam innego wykonawcy

Komentarze